<<  5/11 >>

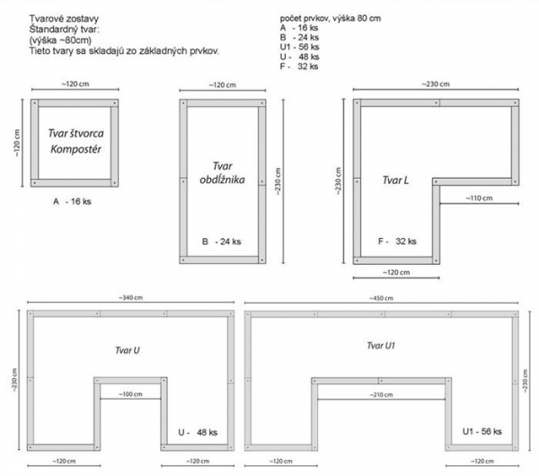
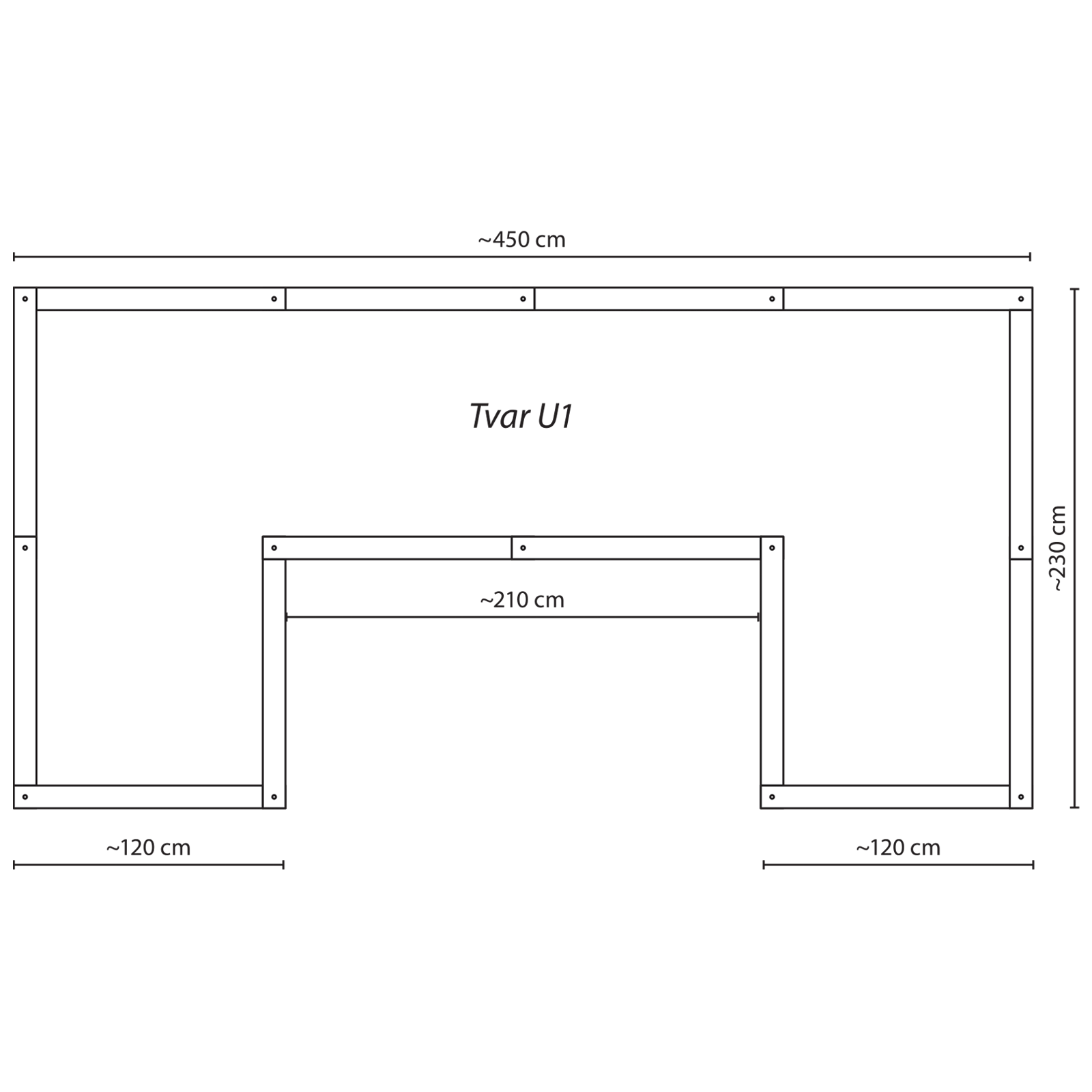
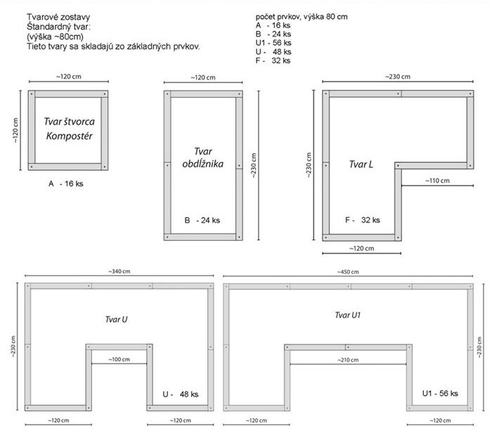
Durisol vysoký záhon: tvar U1

Durisol vysoký záhon: tvar U1

Popis

Durisol vysoký záhon – tvar U1 je praktické riešenie pre vytvorenie funkčného pestovateľského priestoru s jednoduchou montážou a čistým vzhľadom. Vďaka tvaru U poskytuje pohodlný prístup z viacerých strán, čo uľahčuje výsadbu, starostlivosť aj zber. Záhon sa skladá bez potreby špeciálneho základu aj bez použitia vnútornej fólie, pričom zostáva v prirodzenom kontakte s okolitým prostredím. Vďaka prírodnému materiálu Durisol ponúka dlhú životnosť, paropriepustnosť a vhodné podmienky pre pestovanie okrasných aj úžitkových rastlín.

Jednoduchá montáž v 3 krokoch

1. krok: Vyrovnanie podkladu.

2. krok: Montáž jednotlivých dielcov, kým záhon nedosiahne požadovaný tvar.

3. krok: Pri montáži dielcov sa vkladaním a vyťahovaním spojovacích klinov priebežne kontroluje rovinnosť montáže. Spojovacie kliny sú vyrobené z pozinkovanej ocele, aby nedošlo k ich hrdzaveniu. Po zmontovaní posledného radu dielcov sa spojovacie kliny definitívne nasunú do otvorov.

Nezabudnite: Pri montáži 1. a 3. radu dielcov sa do niektorých zostáv záhonov vkladajú priečne vystužovacie tyče.

Prečítajte si viac
Hmotnosť: 0 kg

Varianty produktu

Produkt Typ produktuFarbaTermín aplikácieSkupenstvoGranuláciaDĺžka pôsobenia v mesiacochOko v cmProduktVýška v cmDĺžka v cmŠírka v cmHrúbka v cmPriemer v mmPriemer v cmPriemer vnútorný v cmPriemer vonkajší v cmVnútorná vsadka v cmHorný priemer v cmStredový priemer v cmRozmer v cmHmotnosť MJ v gHmotnosť MJ v kgHmotnosť balenia v kgHmotnosť bm v kgHmotnosť MJ v kg (6 m tyč)Frakcia v mmFrakcia v cmpHBalenieCena za prenájom naPlošná výťažnosťŠírka záberu Záloha v eurKapacitaPočet durisolových dielcov v kusochPočet spojovacích klinovPočet priečnych vystužovacích tyčíMaximálna kapacita fliašMJMaximálna nosnosť v tonáchMiesto vykládky - MJTyp kamenného kobercaMiesto použitiaVhodné pre jazierka s objemomZloženieTeplota pôdyPovrchMateriál / AkosťDĺžka v mRozmer v mRozmer oka v mmHmotnosť MJ v kg (2x3 m sieť) Cena s DPH / MJ
Durisol vysoký záhon: tvar U1
Kód:
Dostupnosť: Na objednávku
Durisol vysoký záhon: tvar U1Hnedá230x450x801090561410zostava 1 493,22 €
Durisol vysoký záhon: tvar U1
Kód:
Dostupnosť: Na objednávku
Durisol vysoký záhon: tvar U1Antracitová230x450x801090561410zostava 1 493,22 €
Durisol vysoký záhon: tvar U1
Kód:
Dostupnosť: Na objednávku
Durisol vysoký záhon: tvar U1Béžová230x450x801090561410zostava 1 493,22 €
Durisol vysoký záhon: tvar U1
Kód:
Dostupnosť: Na objednávku
Durisol vysoký záhon: tvar U1Žltá230x450x801090561410zostava 1 493,22 €
Durisol vysoký záhon: tvar U1
Kód:
Dostupnosť: Na objednávku
Durisol vysoký záhon: tvar U1Zelená230x450x801090561410zostava 2 009,82 €
  • Durisol vysoký záhon – tvar U1

    Durisol vysoký záhon – tvar U1 je praktické a estetické riešenie pre vytvorenie funkčného pestovateľského priestoru v záhrade. Tvar U umožňuje pohodlný prístup z viacerých strán, čo uľahčuje výsadbu, priebežnú starostlivosť aj samotný zber. Vďaka svojmu riešeniu je vhodný na pestovanie zeleniny, byliniek, drobného ovocia aj okrasných rastlín a zároveň pôsobí upravene a čisto v moderných aj tradičných exteriéroch.

    Z hľadiska rozmerov a účelu použitia ide o variabilný produkt, ktorý sa prirodzene začlení do rôznych typov záhradných riešení. Umiestniť ho možno do trávnatej aj spevnenej časti exteriéru, pričom na spodnú časť nie je potrebné ukladať fóliu. Záhon tak zostáva v prirodzenom kontakte s okolitým prostredím, čo podporuje jeho praktické aj ekologické využitie.

    Veľkou výhodou je jednoduchá montáž a technické riešenie, ktoré nevyžaduje realizáciu špeciálneho základu. Vytvára sa iba spodný nosný podklad, čo zjednodušuje osadenie a urýchľuje samotnú realizáciu. Vysoký záhon Durisol je preto vhodným riešením pre zákazníkov, ktorí hľadajú funkčný, odolný a zároveň vizuálne čistý prvok do záhrady s dlhou životnosťou.

    Technické parametre

    • Rozmer: 230 × 450 × 80 cm
    • Hmotnosť: 1090 kg / zostava
    • Počet Durisol dielcov: 56 ks
    • Počet spojovacích klinov: 14 ks
    • Počet priečnych vystužovacích tyčí: 10 ks
    • Merná jednotka: zostava
    • Dostupnosť: na dotaz

    Dostupné farebné varianty

    • hnedá
    • antracitová
    • béžová
    • žltá
    • zelená

    Výhody materiálu Durisol

    • prírodný ekologický materiál
    • paropriepustnosť materiálu
    • dlhá životnosť aj pri kontakte s pôdou
    • odolnosť voči mrazu
    • červenohnedé zafarbenie lepšie absorbuje slnečné žiarenie
    • nízka objemová hmotnosť
    • bez obsahu škodlivých látok a plastov
    • aktívny prínos k ochrane životného prostredia
    • 100 % recyklovateľnosť

    Technické výhody

    • variabilná modulová skladačka
    • výber z množstva tvarových zostáv
    • jednoduchá a rýchla montáž
    • elegantný dizajn
    • nie je potrebné vytvárať špeciálny základ
    • nie je potrebné použiť vnútornú fóliu

    Materiál Durisol

    Durisol je prírodný materiál s veľmi dobrými fyzikálnymi vlastnosťami, vhodný na dlhodobé použitie v exteriéri aj v styku s pôdou. Vyznačuje sa paropriepustnosťou, nízkou objemovou hmotnosťou a odolnosťou voči poveternostným vplyvom. Vďaka svojmu zloženiu je vhodný pre zákazníkov, ktorí uprednostňujú ekologicky zodpovedné riešenia bez obsahu škodlivých látok a plastov.

    Veľkou výhodou materiálu Durisol je aj jeho dlhá životnosť a mrazuvzdornosť. Zároveň ide o 100 % recyklovateľný materiál, ktorý sa aktívne podieľa na ochrane životného prostredia. Pri farebných variantoch v teplejších odtieňoch môže materiál zároveň lepšie absorbovať slnečné žiarenie, čo je pri pestovateľskom priestore praktickou výhodou.

    Použitie vysokého záhona

    Durisol vysoký záhon – tvar U1 je vhodný pre pestovanie zeleniny, byliniek, drobného ovocia aj okrasných rastlín. Vďaka svojmu tvaru poskytuje veľmi dobrý prístup z viacerých strán, čo zvyšuje komfort pri sadení, okopávaní, pletí aj zbere. Uplatnenie nájde pri rodinných domoch, v úžitkových aj okrasných častiach záhrady, ale aj pri realizáciách, kde sa kladie dôraz na spojenie funkčnosti a prirodzeného vzhľadu.

    Produkt je vhodný pre zákazníkov, ktorí chcú vytvoriť stabilný pestovateľský priestor bez potreby komplikovaných stavebných zásahov. Vysoký záhon zároveň pôsobí upravene a esteticky, vďaka čomu sa stáva prirodzenou súčasťou exteriéru s dlhodobým využitím.

    Potrebujete poradiť s výberom vhodného riešenia alebo technickým použitím? Kontaktujte nás v STONE TRADE, radi vám pomôžeme s realizáciou v Hamuliakove a blízkom okolí.

    KONTAKT
    Telefón / Objednávky: +421 918 11 50 11
    E-mail: info@stonetrade.sk

<<  5/11 >>

Zdielajte tento produkt
Facebook  Twitter  Google  LinkedIn  Pinterest  Email 


© Všetky práva vyhradené - www.stonetrade.sk
Tvorba web stránok

Všetky práva vyhradené - www.stonetrade.sk
Tvorba web stránok od GRANDIOSOFT
Nastavenie súborov cookies
Na fungovanie našej webovej stránky používame nevyhnutné cookies (essential cookies) umožňujúce realizovať základné funkcionality webovej stránky. Tieto cookies môžete zakázať zmenou nastavení Vášho internetového prehliadača, čo však môže ovplyvniť fungovanie webovej stránky. Radi by sme tiež využívali dobrovoľné cookies (non-essential), ktoré nám pomôžu zlepšiť fungovanie našej webovej stránky. Pre ich povolenie, prosím, odkliknite súhlas.
Ochrana osobných údajov  |  Informácie o cookies
Súhlasím Prispôsobiť Odmietnuť
<Naspäť
Podrobné nastavenie cookies
Súbory cookie používame na zabezpečenie základných funkcií stránky a na zlepšenie vášho používateľského zážitku. Svoj súhlas pre každú kategóriu môžete kedykoľvek zmeniť.
<Nevyhnutné cookies
 
Technické súbory cookies sú nevyhnutné pre správne fungovanie našej webovej stránky. Tieto sa využívajú najmä na uchovávanie Vašich produktov v košíku, zobrazovanie obľúbených výrobkov, nastavenie Vašich preferencií a nákupného procesu. Pre využívanie technických cookies nepožadujeme Váš súhlas, ale spracúvame ich na základe nášho oprávneného záujmu. Váš prehliadač môžete nastaviť tak, aby blokoval alebo Vás upozorňoval na takéto súbory. V takom prípade však nemusia niektoré časti našej webovej stránky správne fungovať.
<Analytické cookies
 
Analytické cookies nám umožňujú meranie výkonu a počet návštev našej webovej stránky.
<Marketingové cookies
 
Marketingové cookies sú využívané reklamnými a sociálnymi sieťami na prispôsobenie zobrazovaných reklám tak, aby pre vás boli čo najzaujímavejšie.
Povoliť všetky Povoliť zvolené Odmietnuť
Uložiť Odmietnuť